赤峰高新技术产业开发区简介
赤峰高新技术产业开发区(简称“赤峰高新区”)规划面积129平方公里,包括东山工业园区、红山园区、元宝山园区、松山园区。截至2020年底,赤峰高新区共入驻企业298家。2020年实现工业总产值615亿元,同比增长36%,实现工业增加值113亿元,同比增长8.7%,实现税收14.12亿元,带动就业4.5万人。

一.红山产业园
赤峰高新区红山园区(赤峰红山高新技术产业开发区)始建于2002年4月,同年12月经内蒙古自治区人民政府批准为自治区级高新技术开发区,2006年9月,通过国家发改委核准,先后荣获“国家级循环化改造试点示范园区”“国家级中小企业公共服务示范基地”“国家级低碳工业园区试点开发区”等称号。园区规划面积41平方公里,现已完成建设面积16平方公里,入驻企业达175家,其中规模以上企业42家,从业人员3.2万人。2020年,实现工业总产值266.8亿元,上缴税金9.5亿元。
产业定位
园区经过十几年的快速发展,现已形成冶金、医药、纺织、装备制造四大主导产业。按照“总体规划、分区建设”的原则,规划布局为“一区四园”:一区即中央商务区,规划建设面积5平方公里;四园即冶金产业园、医药产业园、纺织产业园和装备制造产业园。医药产业园规划面积10平方公里,建成面积2.6平方公里,入驻知名企业包括上海医药集团、承德颈复康和上海创诺集团等;纺织产业园规划面积2平方公里,建成面积1.2平方公里,入驻入驻知名企业包括东黎羊绒、内蒙古仁立雪莲、昭乌达羊绒等;冶金产业园规划面积4平方公里,入驻知名企业包括中色锌业、远联钢铁和金剑铜业;装备制造产业园规划面积20平方公里,建成面积8.14平方公里,入驻知名企业包括深圳拓佳电子、恩沃电子、虹源风能等。

基础配套
目前,园区水、电、路、暖、汽、通讯等基础设施完备,建有日处理5万吨污水处理厂及固体废渣处理厂各一座,公安、城管、地税、工商、质监、职业院校等职能部门相继入驻,同时中央商务区已经启动建设,配套功能将日臻完善。
要素价格
1. 特种行业用水:26.9元/吨。
2. 工业用水:9.9元/吨。
3. 排污:0.9元/吨。
4. 工业用电:0.495元/度(均价)。
5. 一般商业用电:0.637元/度(专用电均价),0.647元/度(低压电均价)。
6. 蒸汽:180元/蒸吨。
7. 土地:11.2-20万元/亩(工业用地)。
8. 人工:熟练工人2200-3000元/月,技术工人3000-3800元/月,工程师3500-5000元/月,一般管理者3000-5500元/月,高级管理者6000-12000元/月。
二.松山产业园
赤峰高新区松山园区距市区18公里,是赤峰高新区重要组成部分,规划面积23.58平方公里。园 区始终坚持绿色、生态的发展理念,将松山园区打造成宜业、宜居、生态、绿色、智慧的综合性园 区。2017年被授予“自治区小型微型企业创业创新示范基地”;2019年度被授予“自治区级示范性创 业园和创业孵化基地”。
产业定位
园区主要发展以农牧产品深加工为主的食品轻工业,以生产新型建筑材料、机械装备为主的制造 业,以生物质为原料的生物科技产业。

基础配套
基础设施建设方面,截至2020年底园区总投资8.84亿元,建设完成高标准市政道路25公里,园区 形成了“七横四纵”的道路格局;铺设供水管线20公里,日供水能力达到1万吨;污水处理厂总建设 规模为日处理污水5万吨,一期建设规模为1.5万吨,已投入运行;66千伏3.15万千伏安变电站建成并 投入使用;园区实现了集中供热;宽带网络已覆盖整个园区;园区道路绿化面积已完成45万平方米;大广高速园区互通工程已建成通车;铁路专用线已开工建设,2021年底完成建设;双创服务中心建设 面积3000平方米,已投入使用。标准化厂房建设方面,自2016年开始,松山区投资3.16亿元,分四期建设标准化厂房20万平方 米,计容面积30万平方米,占地467亩,2021年园区启动建设标准化厂房15万平方米。
入驻企业
园区落户企业52家,总投资45亿元,全部建成运营后,年可实现产值50亿元,就业5000余人,税收2.5亿元。
要素价格
1. 土地出让:按基准地价9.6万元/亩,公开挂牌出让。
2. 标准化厂房租金:年租金180元/平方米,税收或用工达到要求可免租金。
3. 用电:0.45元左右/度(峰谷电价)。
4. 供暖:4.8元/平方米(标准层高)。
5. 污水处理:2.98元/吨。
三.元宝山产业园
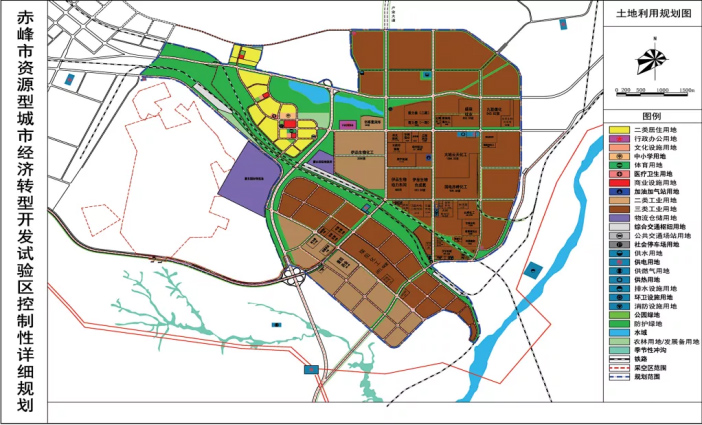
赤峰高新区元宝山园区(赤峰市资源型城市经济转型开发试验区)是赤峰高新区重要组成部分,位于内蒙古赤峰市元宝山区,2006年7月经内蒙古自治区人民政府批准设立,总规划控制面积42平方公里。园区现为自治区级高新技术产业开发区、自治区级承接产业转移示范园区、自治区高层次人才创新创业基地、自治区机电和高新技术产业出口基地、自治区级高新技术特色产业基地、自治区级外贸转型升级基地,国家级众创空间试点基地。
产业定位
根据开发区产业定位及规划环评的要求,建成区共划分为煤磷化工区、生物化工区(含医药)、精细化工区(含医药)、化工新材料区、物流仓储区等5个产业功能区。

基础配套
自2006年以来,元宝山区政府已累计投入近20亿元进行开发区基础设施建设。现有道路66公里, 25平方公里建成区实现路网全覆盖;电力线路22公里,电压等级10KV、66KV、220KV变电所各1座;给水管线50公里,日供水12万立方米水厂一座;排水管线60公里,采用雨污分流体制,日处理5万吨污水处理厂一座;集中供热供汽,供热管网28公里,供汽管网13公里,集中供热供汽企业1家;通讯线路16公里,移动、联通及电信网络和通信服务覆盖开发区;固体废弃物贮存处理中心、危废处理中心正在建设中;已建街路亮化全部到位,沿街及企业厂区绿化面积达60万平方米;沿街消防管道敷设到位,区内设有消防特勤中队,人员和设备配置齐全。
入驻企业
至2020年底,进驻园区工业企业已达52家,世界知名企业荷兰皇家帝斯曼、美国建明集团,世界500强企业中国能源、天津物产,中国500强企业新奥集团、云天化集团、贵州磷化集团,行业龙头伊品生物,以及普因医药、普力泰材料等高新技术企业纷纷落户园区,现已形成煤磷化工、生物化工、医药化工、精细化工新材料、机械加工等为主导的产业体系,产业集聚和循环发展效应日益显现。
要素价格
1. 工业用电:0.495元/度。
2. 工业用水:3元/吨。
3. 供暖:4元/平方米/月。
4. 工业蒸汽:140元/吨。
5. 污水处理:1.3元/吨。
6. 工业用地:11.2-20万元/亩。
7. 人工:化工3000元/月;医药3200元/月。
四.东山产业园
赤峰高新区东山工业园区是赤峰市委、市政府于2016年全新规划建设的市直属工业园区,是赤峰高新区的重要组成部分,规划面积22平方公里。
产业定位
东山工业园区主要发展冶金、化工等产业。2018年11月,东山工业园区与元宝山园区合并规划为赤峰市次临港产业区,同步发展次临港海运资源相关产业。
基础配套
东山工业园区自2016年正式开始建设以来,共投入资金60亿元,完成园区内征地拆迁等工程,其中征地面积达22458亩;修建创业大道、发展大道等道路5条,新建改建220KV线路12条;道路、供电、供气、供水、排水(洪)、污水处理、排渣、铁路专用线入厂等基础设施建设日趋完善。

入驻项目
东山工业园区已经入驻项目14个,其中飞地项目7个,计划总投资约810余亿元,项目全部达产后预计可实现年工业总产值超过1000亿元,实现税收超过60亿元,实现就业约35000人以上。目前,已经建成项目4个,在建项目6个,正在办理前期手续项目4个。另外,一批大项目、好项目正在积极接洽中。
要素价格
1. 土地出让:按基准地价9.6万元左右/亩公开挂牌出让。“飞地项目”土地优惠政策由飞出地按照飞地经济政策兑现。
2. 工业用电:入驻东山工业园区的大型企业享受大用户直供电政策,电价最低可降至0.4元/千瓦时左右,同步正在推进国家第四批增量配电网试点工作,建成后电价将进一步下降。
3. 工业用水:中水水价3-3.8元/吨,疏干水5元/吨。
4. 工业蒸汽:自备电厂成本价86.8元左右/吨,出厂价99元左右/吨;市场现行供汽价格114元/吨。
5. 污水处理:2.05元左右/吨。
6. 天然气管道供应:实行市场定价,3元左右/立方米。
7. 废渣排放费用:实行市场定价,每吨16元。